Casa Prado

Ubicación: Prado (zona de régimen patrimonial), Montevideo, Uruguay

Proyecto: Arq. María Victoria Besonías, Arq. Guillermo de Almeida

Colaboradores: Arq. Micaela Salibe, Hernán de Almeida

Superficie del terreno: 482m2

Superficie construida: 143m2

Año de construcción: 2022

Fotos: Besonías Almeida arquitectos 

MEMORIA 
María Victoria Besonías

Esta casa se ubica en El Prado, un barrio de la ciudad de Montevideo que, por su valor urbano, edilicio y ambiental, cuenta con la protección de la Comisión Especial Permanente (CEP) de la Intendencia de Montevideo.

Iniciamos el proyecto con las restricciones propias de esta ubicación y con el dato relevante de la existencia de restos de una construcción ruinosa a demoler, aunque, según evaluamos, con la posibilidad de recuperar el muro de la fachada conservándolo con un apuntalamiento adecuado.

De manera que la  primera recomendación fue mantener esa fachada preexistente para cumplir con uno de los requerimientos de la CEP que aconsejaba sostener el carácter de este sector del Prado: calles angostas de poco tránsito delimitadas por fachadas continúas sobre la línea municipal. Esto se lograría aprovechando el material y la mano de obra presente en el muro existente, sin gastos innecesarios. Entendimos que nuestra propuesta debía expresar una convivencia entre la imagen de un barrio de principios del siglo XX y una casa contemporánea.

Los requerimientos de los propietarios, un matrimonio con dos hijas residentes en Montevideo, fueron. sintéticamente, una casa que contara con una zona social totalmente integrada, aunque con cierta definición de cada sector, con  tres dormitorios dispuestos de manera que generaran independencia matrimonial y vinculación entre las hijas. También necesitaban contar con un espacio para escuchar y hacer música.

En cuanto a la ubicación en el lote, la casa debía estar retirada de las casas linderas para favorecer la libre circulación y lograr óptimas condiciones de iluminación y ventilación natural. Además querían que todos los ambientes estuvieran vinculados, en la medida de lo posible, con jardines con vegetación.

Estos requerimientos vinieron por escrito, muy detallados y acompañados de fotos de una maqueta de estudio (el propietario había cursado varios años en la facultad de arquitectura), que expresaba una concepción de la casa basada en  volúmenes articulados. De esta manera el abordaje del proyecto no solo contó datos funcionales, sino también con intenciones espaciales.

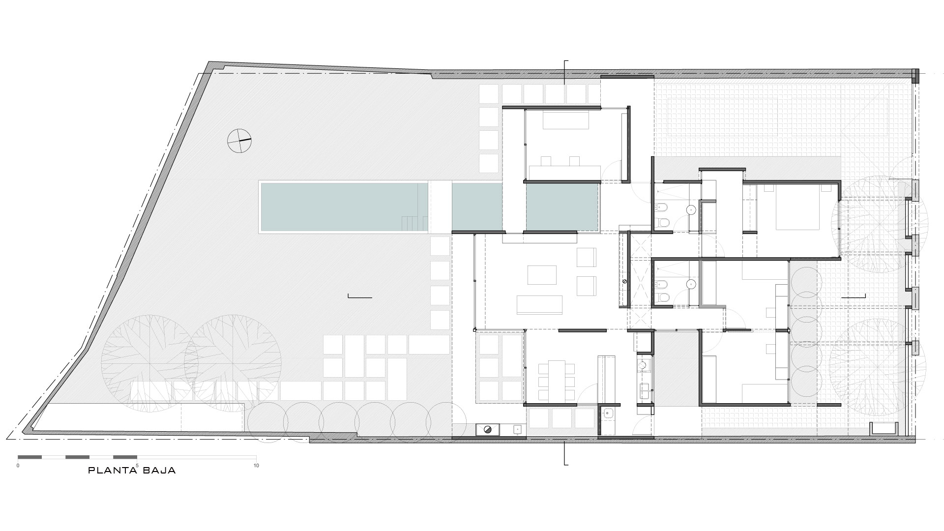
Con todo ese material cuidadosamente preparado, un cordial encuentro con los propietarios y una visita al lugar, nuestra propuesta fue una casa que se separa del muro preexistente y, a la vez, lo apuntala con un sistema que combina columnas, vigas y losa. Esto conforma un espacio exterior con vegetación que otorga intimidad y aislamiento acústico a los tres dormitorios. El  acceso a la casa es a través de la cochera. Desde el hall de ingreso se generan vistas a un estanque que se prolonga en la piscina y a un corredor con iluminación cenital que separa la zona social de los dormitorios. Un pequeño patio, prolongación del jardín que aísla la casa de la vía pública, contribuye a reforzar ese requerimiento. Apartado, aunque de acceso directo desde la entrada, ubicamos el estudio, aislado sonoramente del resto de la casa por el estanque y de los vecinos por un espacio abierto que posibilita la relación entre la cochera y el jardín en el fondo del lote.

De esta manera conseguimos articular las diferentes zonas de la casa como una reinterpretación del concepto manifestado en aquellas imágenes de maqueta provistas por el propietario que lo generaba proponiendo volúmenes de diferentes alturas. Esta propuesta volumétrica permite que todos los ambientes posean ventilación cruzada y se prolonguen física o visualmente en los diferentes jardines. 

En todos los proyectos ponemos una atención especial en el tratamiento de la luz natural, dirigida tanto a controlar su incidencia sobre las superficies acristaladas como a capitalizarla como un material de proyecto que aporta riqueza a los espacios habitables. Concebimos las aberturas como tales, no como elementos estandarizados con medidas y posiciones predeterminadas sino como horadados en las construcciones que, por supuesto, permitan ventilar e iluminar los ambientes, pero también dejar indefinida la relación exterior-interior, enmarcar el paisaje, filtrar la luz, reflejarla en un muro, etc. Esas perforaciones son el resultado de las búsquedas particulares de cada proyecto y de las relaciones que se quieran establecer con su entorno específico.

En este proyecto en particular la forma y posición de las aberturas a los diferentes espacios abiertos va definiendo una multiplicidad de atmosferas cambiantes que enriquecen la espacialidad de los ambientes.  

Casa Prado

Ubicación: Prado (zona de régimen patrimonial), Montevideo, Uruguay

Proyecto: Arq. María Victoria Besonías, Arq. Guillermo de Almeida

Colaboradores: Arq. Micaela Salibe, Hernán de Almeida

Superficie del terreno: 482m2

Superficie construida: 143m2

Año de construcción: 2022

Fotos: Besonías Almeida arquitectos 

MEMORIA 
María Victoria Besonías

Esta casa se ubica en El Prado, un barrio de la ciudad de Montevideo que, por su valor urbano, edilicio y ambiental, cuenta con la protección de la Comisión Especial Permanente (CEP) de la Intendencia de Montevideo.

Iniciamos el proyecto con las restricciones propias de esta ubicación y con el dato relevante de la existencia de restos de una construcción ruinosa a demoler, aunque, según evaluamos, con la posibilidad de recuperar el muro de la fachada conservándolo con un apuntalamiento adecuado.

De manera que la  primera recomendación fue mantener esa fachada preexistente para cumplir con uno de los requerimientos de la CEP que aconsejaba sostener el carácter de este sector del Prado: calles angostas de poco tránsito delimitadas por fachadas continúas sobre la línea municipal. Esto se lograría aprovechando el material y la mano de obra presente en el muro existente, sin gastos innecesarios. Entendimos que nuestra propuesta debía expresar una convivencia entre la imagen de un barrio de principios del siglo XX y una casa contemporánea.

Los requerimientos de los propietarios, un matrimonio con dos hijas residentes en Montevideo, fueron. sintéticamente, una casa que contara con una zona social totalmente integrada, aunque con cierta definición de cada sector, con  tres dormitorios dispuestos de manera que generaran independencia matrimonial y vinculación entre las hijas. También necesitaban contar con un espacio para escuchar y hacer música.

En cuanto a la ubicación en el lote, la casa debía estar retirada de las casas linderas para favorecer la libre circulación y lograr óptimas condiciones de iluminación y ventilación natural. Además querían que todos los ambientes estuvieran vinculados, en la medida de lo posible, con jardines con vegetación.

Estos requerimientos vinieron por escrito, muy detallados y acompañados de fotos de una maqueta de estudio (el propietario había cursado varios años en la facultad de arquitectura), que expresaba una concepción de la casa basada en  volúmenes articulados. De esta manera el abordaje del proyecto no solo contó datos funcionales, sino también con intenciones espaciales.

Con todo ese material cuidadosamente preparado, un cordial encuentro con los propietarios y una visita al lugar, nuestra propuesta fue una casa que se separa del muro preexistente y, a la vez, lo apuntala con un sistema que combina columnas, vigas y losa. Esto conforma un espacio exterior con vegetación que otorga intimidad y aislamiento acústico a los tres dormitorios. El  acceso a la casa es a través de la cochera. Desde el hall de ingreso se generan vistas a un estanque que se prolonga en la piscina y a un corredor con iluminación cenital que separa la zona social de los dormitorios. Un pequeño patio, prolongación del jardín que aísla la casa de la vía pública, contribuye a reforzar ese requerimiento. Apartado, aunque de acceso directo desde la entrada, ubicamos el estudio, aislado sonoramente del resto de la casa por el estanque y de los vecinos por un espacio abierto que posibilita la relación entre la cochera y el jardín en el fondo del lote.

De esta manera conseguimos articular las diferentes zonas de la casa como una reinterpretación del concepto manifestado en aquellas imágenes de maqueta provistas por el propietario que lo generaba proponiendo volúmenes de diferentes alturas. Esta propuesta volumétrica permite que todos los ambientes posean ventilación cruzada y se prolonguen física o visualmente en los diferentes jardines. 

En todos los proyectos ponemos una atención especial en el tratamiento de la luz natural, dirigida tanto a controlar su incidencia sobre las superficies acristaladas como a capitalizarla como un material de proyecto que aporta riqueza a los espacios habitables. Concebimos las aberturas como tales, no como elementos estandarizados con medidas y posiciones predeterminadas sino como horadados en las construcciones que, por supuesto, permitan ventilar e iluminar los ambientes, pero también dejar indefinida la relación exterior-interior, enmarcar el paisaje, filtrar la luz, reflejarla en un muro, etc. Esas perforaciones son el resultado de las búsquedas particulares de cada proyecto y de las relaciones que se quieran establecer con su entorno específico.

En este proyecto en particular la forma y posición de las aberturas a los diferentes espacios abiertos va definiendo una multiplicidad de atmosferas cambiantes que enriquecen la espacialidad de los ambientes.