Edificio Estados Unidos

Ubicación: Estados Unidos 4263, Capital Federal, Argentina Proyecto y dirección: María Victoria Besonias – Luciano Kruk Colaboradores: Arq. Leandro Pomies – Andrea Wohlgenannt Superficie del terreno: 277m2 Superficie construída: 1419m2 Año de construcción: 2009 Fotos: Guilherme Morelli, Sergio Pirrone


Reconocimiento

  • Expuesto en la XIII Bienal Internacional de Arquitectura de Buenos Aires BA2011.
  • Seleccionado en la XVII Bienal Panamericana de Arquitectura de Quito 2010. 
  • Expuesto en la XIII Bienal de Arquitectura SCA/CPAU 2010.

MEMORIA
María Victoria Besonías

El lugar
Teníamos que construir un edificio de departamentos en un típico lote de 8.66m de ancho en Boedo, una zona que sin perder aún las características de barrio, viene modificando su fisonomía como consecuencia de la densificación urbana producida en estos últimos años en importantes sectores de la ciudad. La particularidad del terreno en el que debíamos intervenir es que su fondo es colindante con un patio urbano, con abundante arbolado, donde funciona una escuela de fútbol y una pequeña plaza. Las vistas a este pulmón verde coinciden con la mejor orientación: el norte.

La propuesta
Pensamos que, a la espera de las transformaciones que se producirán en el corto o mediano plazo en el sector, el edificio debía ser una pieza carente de adjetivaciones, suficientemente neutra desde lo formal como para convivir con lo que hoy está y lo puede acompañarlo en un futuro. Con una voluntad concentrada en su expresión constructiva y en su proceso productivo. Por esa razón nos pareció apropiado proponer un edificio cuya fachada no presentara acentos ni articulaciones y que, de ser posible, se resolviera con un único material. Nos propusimos también seguir experimentando con el hormigón a la vista como lo venimos haciendo en las casas de veraneo en Mar Azul o en casas de uso permanente en el gran Buenos Aires. Lo hicimos así porque evaluamos que ese sistema estético constructivo con las adaptaciones necesarias nos resolvía tanto el tema de un material dominante de fácil asimilación a diferentes entornos, como el acortamiento de los tiempos de construcción, el bajo mantenimiento futuro y un costo dentro del standard. La adaptación fundamental fue dejar el hormigón visto exclusivamente para resolver las fachadas, el núcleo vertical y una serie de tabiques internos que cumplen la doble función de ser divisores de ambientes y estructura resistente. Para las dos medianeras parecía lógico seguir pensando en una solución tradicional de columnas de hormigón ocultas en doble muro de mampostería. Quisimos también, como en la Casa de Hormigón, resolver las fachadas como un fuelle entre el espacio público y el privado, con una serie de tabiques verticales que varían su posición de piso en piso y permiten resolver las aberturas en cada ambiente de todo el ancho y la altura disponible. Las vistas hacia el interior de las unidades que dan a la calle están protegidas por dichos elementos y las que dan al pulmón verde permiten percibir a medida que el usuario se desplaza dentro del departamento encuadres siempre cambiantes de ese paisaje. Otro de los propósitos que perseguimos fue que la planta baja estuviera libre de funciones, de manera de ofrecer al espacio público, aire, luz y vistas al jardín posterior, y que por otro lado no hubiera unidades habitacionales perjudicadas por su contacto con la cota pública. Por último nos preocupamos por que cada departamento contara con la mayor flexibilidad de uso posible y lo dotamos de una expansión generosa y a la vez protegida por los tabiques que organizan las fachadas.

La organización funcional
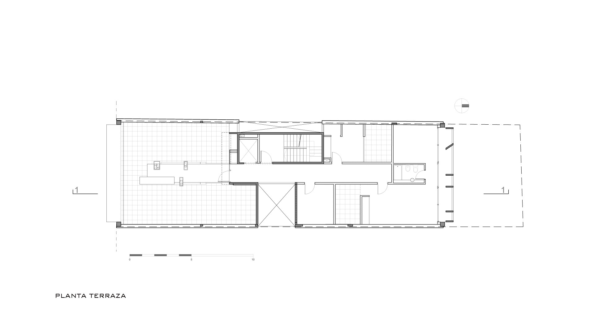
Es un edificio de planta baja libre, con 5 pisos tipo de cuatro unidades monoambientes cada uno y un sexto donde se desarrolla una terraza y ambientes de uso común, además de una unidad habitacional de un dormitorio.
Por el palier con vistas a la ciudad e iluminación natural se accede, en la planta tipo, a cuatro unidades espejadas: dos hacia el frente, que se aparean por los baños y una cocina, y dos hacia el contrafrente en idéntica situación. Los tabiques de hormigón visto que definen dichos espacios de servicio tienen, como ya dijimos, una función estructural y también delimitan esos ambientes “fuelle” que otorgan mayor intimidad sonora a los espacios principales de cada unidad habitacional. La creación de los dos pequeños patios en el centro de la planta obedece al propósito de brindarles a todas las unidades ventilación cruzada e iluminación adicional en el sector mas profundo de la planta.
La solución constructiva
El sistema estructural que resuelve la planta tipo con apoyos en el centro de la misma, requirió de un espacio de transición para poder tener una planta baja libre con apoyos sólo en las medianeras. El mismo fue resuelto mediante vigas que reciben las cargas del sistema de tabiques centrales de la planta tipo y las trasladan a los ejes medianeros. Este sistema de vigas se cierra arriba y abajo con losas que permiten también el desvío de las montantes de las instalaciones hacia los bordes sin requerir de un cielorraso armado que introduzca otro material.
Los muros medianeros fueron revocados y pintados con látex blanco en el interior y con un revoque plástico en el exterior. Los pisos son de paños de alisado de cemento divididos por planchuelas de aluminio. El encuentro entre muros y el suelo se resolvió con un perfil rehundido de aluminio a manera de zócalo. Las aberturas son de aluminio anodizado color bronce oscuro. El sistema de calefacción y refrigeración está resuelto con equipos split individuales.

De Mar Azul a Boedo
Fue muy interesante como experiencia para nuestro estudio trabajar sobre la adaptación de un sistema estético constructivo originado para intervenir en un ambiente y un programa específico: casas de veraneo en un bosque marítimo, a un tema y un entorno tan diferente. Asumíamos el desafío de que el lenguaje que venimos desarrollando en las casas no pudiera soportar el pasaje de escala, los cambios de programa y su ubicación en el tejido urbano. El resultado obtenido nos confirma que un sistema de estrategias de abordaje de proyectos y de soluciones estético constructivas planteados a priori como cuerpo de ideas, no limita las posibilidades de resolución de los diferentes problemas que puedan presentarse. si la experimentación con cada nuevo encargo sabe pasar por el tamiz que presenta la propia circunstancia.

Edificio Estados Unidos

Ubicación: Estados Unidos 4263, Capital Federal, Argentina Proyecto y dirección: María Victoria Besonias – Luciano Kruk Colaboradores: Arq. Leandro Pomies – Andrea Wohlgenannt Superficie del terreno: 277m2 Superficie construída: 1419m2 Año de construcción: 2009 Fotos: Guilherme Morelli, Sergio Pirrone


Reconocimiento

  • Expuesto en la XIII Bienal Internacional de Arquitectura de Buenos Aires BA2011.
  • Seleccionado en la XVII Bienal Panamericana de Arquitectura de Quito 2010. 
  • Expuesto en la XIII Bienal de Arquitectura SCA/CPAU 2010.

MEMORIA
María Victoria Besonías

El lugar
Teníamos que construir un edificio de departamentos en un típico lote de 8.66m de ancho en Boedo, una zona que sin perder aún las características de barrio, viene modificando su fisonomía como consecuencia de la densificación urbana producida en estos últimos años en importantes sectores de la ciudad. La particularidad del terreno en el que debíamos intervenir es que su fondo es colindante con un patio urbano, con abundante arbolado, donde funciona una escuela de fútbol y una pequeña plaza. Las vistas a este pulmón verde coinciden con la mejor orientación: el norte.

La propuesta
Pensamos que, a la espera de las transformaciones que se producirán en el corto o mediano plazo en el sector, el edificio debía ser una pieza carente de adjetivaciones, suficientemente neutra desde lo formal como para convivir con lo que hoy está y lo puede acompañarlo en un futuro. Con una voluntad concentrada en su expresión constructiva y en su proceso productivo. Por esa razón nos pareció apropiado proponer un edificio cuya fachada no presentara acentos ni articulaciones y que, de ser posible, se resolviera con un único material. Nos propusimos también seguir experimentando con el hormigón a la vista como lo venimos haciendo en las casas de veraneo en Mar Azul o en casas de uso permanente en el gran Buenos Aires. Lo hicimos así porque evaluamos que ese sistema estético constructivo con las adaptaciones necesarias nos resolvía tanto el tema de un material dominante de fácil asimilación a diferentes entornos, como el acortamiento de los tiempos de construcción, el bajo mantenimiento futuro y un costo dentro del standard. La adaptación fundamental fue dejar el hormigón visto exclusivamente para resolver las fachadas, el núcleo vertical y una serie de tabiques internos que cumplen la doble función de ser divisores de ambientes y estructura resistente. Para las dos medianeras parecía lógico seguir pensando en una solución tradicional de columnas de hormigón ocultas en doble muro de mampostería. Quisimos también, como en la Casa de Hormigón, resolver las fachadas como un fuelle entre el espacio público y el privado, con una serie de tabiques verticales que varían su posición de piso en piso y permiten resolver las aberturas en cada ambiente de todo el ancho y la altura disponible. Las vistas hacia el interior de las unidades que dan a la calle están protegidas por dichos elementos y las que dan al pulmón verde permiten percibir a medida que el usuario se desplaza dentro del departamento encuadres siempre cambiantes de ese paisaje. Otro de los propósitos que perseguimos fue que la planta baja estuviera libre de funciones, de manera de ofrecer al espacio público, aire, luz y vistas al jardín posterior, y que por otro lado no hubiera unidades habitacionales perjudicadas por su contacto con la cota pública. Por último nos preocupamos por que cada departamento contara con la mayor flexibilidad de uso posible y lo dotamos de una expansión generosa y a la vez protegida por los tabiques que organizan las fachadas.

La organización funcional
Es un edificio de planta baja libre, con 5 pisos tipo de cuatro unidades monoambientes cada uno y un sexto donde se desarrolla una terraza y ambientes de uso común, además de una unidad habitacional de un dormitorio.
Por el palier con vistas a la ciudad e iluminación natural se accede, en la planta tipo, a cuatro unidades espejadas: dos hacia el frente, que se aparean por los baños y una cocina, y dos hacia el contrafrente en idéntica situación. Los tabiques de hormigón visto que definen dichos espacios de servicio tienen, como ya dijimos, una función estructural y también delimitan esos ambientes “fuelle” que otorgan mayor intimidad sonora a los espacios principales de cada unidad habitacional. La creación de los dos pequeños patios en el centro de la planta obedece al propósito de brindarles a todas las unidades ventilación cruzada e iluminación adicional en el sector mas profundo de la planta.
La solución constructiva
El sistema estructural que resuelve la planta tipo con apoyos en el centro de la misma, requirió de un espacio de transición para poder tener una planta baja libre con apoyos sólo en las medianeras. El mismo fue resuelto mediante vigas que reciben las cargas del sistema de tabiques centrales de la planta tipo y las trasladan a los ejes medianeros. Este sistema de vigas se cierra arriba y abajo con losas que permiten también el desvío de las montantes de las instalaciones hacia los bordes sin requerir de un cielorraso armado que introduzca otro material.
Los muros medianeros fueron revocados y pintados con látex blanco en el interior y con un revoque plástico en el exterior. Los pisos son de paños de alisado de cemento divididos por planchuelas de aluminio. El encuentro entre muros y el suelo se resolvió con un perfil rehundido de aluminio a manera de zócalo. Las aberturas son de aluminio anodizado color bronce oscuro. El sistema de calefacción y refrigeración está resuelto con equipos split individuales.

De Mar Azul a Boedo
Fue muy interesante como experiencia para nuestro estudio trabajar sobre la adaptación de un sistema estético constructivo originado para intervenir en un ambiente y un programa específico: casas de veraneo en un bosque marítimo, a un tema y un entorno tan diferente. Asumíamos el desafío de que el lenguaje que venimos desarrollando en las casas no pudiera soportar el pasaje de escala, los cambios de programa y su ubicación en el tejido urbano. El resultado obtenido nos confirma que un sistema de estrategias de abordaje de proyectos y de soluciones estético constructivas planteados a priori como cuerpo de ideas, no limita las posibilidades de resolución de los diferentes problemas que puedan presentarse. si la experimentación con cada nuevo encargo sabe pasar por el tamiz que presenta la propia circunstancia.